Перейти к содержимому
Эльвира Станкевич.
Дизайн интерьеров
Главная
Проекты
Этапы работы
Пример проекта
Цены
Блог
3d визуализации
Бюджет
Ассоциации
Отзывы
Контакты
Главная
Проекты
Этапы работы
Пример проекта
Цены
Блог
3d визуализации
Бюджет
Ассоциации
Отзывы
Контакты
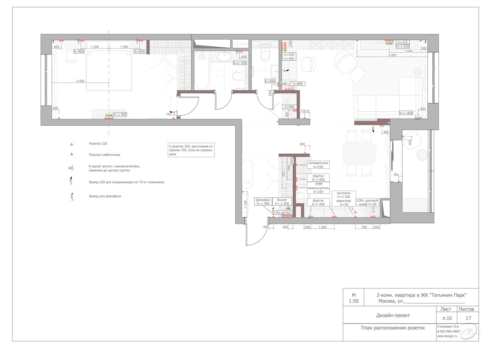
Пример проекта
Планы
Развертки стен
Скачать пример альбома проекта в формате .pdf (95 Мб)