Работа над проектом состоит из нескольких последовательных этапов. Они следуют друг за другом, поменять местами их нельзя.
«Нулевой» этап – это составление предварительного ТЗ – о том как это сделать, можно подробно прочитать тут.
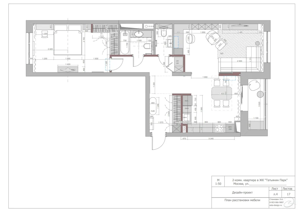
Необходимо выполнить профессиональный обмер помещения. Обмер должен выполняться методом сканирования с учетом кривизны стен, результат мне нужен в виде модели для Архикад. Я могу порекомендовать своих специалистов, или Вы можете выбрать самостоятельно любого подрядчика.
Далее мы заключаем с Вами договор и приступаем к последовательной работе над проектом.























